合肥kyn28a-12,中置式中壓開關柜生產廠家,安徽得潤電氣



KYN28A型戶內交流金屬鎧裝中置式開關設備
一.概述
KYN28A型戶內交流金屬鎧裝中置式開關設備(以下簡稱開關設備)系由西安森源公司開發和提供技術轉讓的先進中壓開關設備。它適用于三相交流額定電壓12KV、24KV、額定頻率50(60)Hz電力系統,用于接受和分配電能并對電路實行控制、保護及監測。
符合標準
GB3906-2006 《3~35kV交流金屬封閉開關設備》
GB11022-1999 《高壓開關設備通用技術條件》
IEC62271-200(2003)《額定電壓1 kV以上52kV及以下交流金屬封閉開關設備和控制設備》
DL404-97《戶內交流高壓開關柜訂貨技術條件》
二.型號及其含義

三.使用環境條件
1、環境溫度:最高溫度+40℃,最低溫度-10℃;
2、環境濕度:日平均相對濕度≤95%,月平均相對濕度≤90%;
3、海拔高度:1000m以下;
4、抗地震度:地震烈度不超過8度;
5、周圍空氣應不含腐蝕性或可燃氣體、水蒸氣等明顯污染;
6、無嚴重污穢及經常性的劇烈振動,嚴酷條件下嚴酷度設計滿足1類要求;
7、在超過GB3906規定的正常的環境條件下使用時,由用戶和制造廠協商。
注:①相對濕度大于70%時應接通電加熱器。
②凡海拔高度超過1000m的地方,按JB/Z102-71規定處理
四.技術參數
1.開關設備技術參數見表1
項目 | 單位 | 12KV 參數 | 24KV參數 | |||
| 額定電壓 | kV | 3.6,7.2,12 | 24 | |||
| 額定頻率 | Hz | 50(60) | 50(60) | |||
| 斷路器額定電流 | A | 630,1250,1600,2000, 2500,3150,4000,5000 | 630,1250,1600,2000,2500 | |||
開關柜額定電流 | A | 630,1250,1600,2000, 2500,3150,4000,5000 | 630,1250,1600,2000,2500 | |||
額定熱穩定電流(4s) | kA | 25,31.5,40,50(1S) | 25,31.5,40 | |||
額定動穩定電流(峰值) | kA | 63,80,100,125 | 63,80,100 | |||
額定短路開斷電流 | kA | 25,31.5,40,50 | 25,31.5,40 | |||
額定短路關合電流(峰值) | kA | 63,80,100,125 | 63,80,100 | |||
額定絕 緣水平 | 1min工頻耐受電壓 | kV | 24 | 32 | 42 | 65 |
雷電沖擊耐受電壓 | kV | 40 | 60 | 75 | 95 | |
防護等級 | 外殼為IP4X,隔室間、斷路器室門打開時為IP2X | |||||
2、VS1、VD4、3AE真空斷路器技術參數
項目 | 單位 | 12KV 參數 | 24KV參數 | |||
| 額定電壓 | kV | 3.6,7.2,12 | 24 | |||
| 額定頻率 | Hz | 50(60) | 50(60) | |||
| 斷路器額定電流 | A | 630,1250,1600,2000, 2500,3150,4000,5000 | 630,1250,1600,2000,2500 | |||
開關柜額定電流 | A | 630,1250,1600,2000, 2500,3150,4000,5000 | 630,1250,1600,2000,2500 | |||
額定熱穩定電流(4s) | kA | 25,31.5,40,50(1S) | 25,31.5,40 | |||
額定動穩定電流(峰值) | kA | 63,80,100,125 | 63,80,100 | |||
額定短路開斷電流 | kA | 25,31.5,40,50 | 25,31.5,40 | |||
額定短路關合電流(峰值) | kA | 63,80,100,125 | 63,80,100 | |||
額定絕 緣水平 | 1min工頻耐受電壓 | kV | 42 | 65 | ||
雷電沖擊耐受電壓 | kV | 75 | 95 | |||
| 額定操作順序 | O-0.3s(180s)-CO-180s-CO | |||||
| 額定短路開斷電流開斷次數 | 次 | 50 | 50 | |||
| 機械壽命 | 次 | 20000 | 10000 | |||
當斷路器用于控制3~10kV電動機時,若起動電流小于600A,必須加金屬氧化鋅避雷器,其具體要求由用戶與制造廠聯系協商:當斷路器用于開斷電容器組時,電容器組的額定電流不應大于斷路器額定電流的80%。
3、操作機構技術參數見表4
| 名稱 | 單位 | 數值 | |
| 額定操作電壓 | 合閘線圈 | V | DC220、110,AC220、110 |
| 分閘線圈 | V | DC220、110,AC220、110 | |
| 線圈功率 | 合閘線圈 | W | 245 |
| 分閘線圈 | W | 245 | |
| 儲能電機功率 | W | 50 | |
| 儲能電機額定電壓 | V | DC220、110,AC220、110 | |
| 儲能時間 | S | >10 | |
五.結構特點
柜體是由柜體和中置式可抽出部件(即手車)兩大部分組成 (見圖1)。柜體分四個單獨的隔室,外殼防護等級為IP4X,各小室間和斷路器室門打開時防護等級為IP2X。本開關設備可以從正面進行安裝、調試和維護,因此它可以背靠背、組成雙重排列和靠墻安裝.
1.外殼及其它
開關設備的主柜架是選用進口敷鋁鋅薄鋼板,并采用多重折邊工藝,使整個柜體具有很強的抗腐蝕與抗氧化作用的優點。
2.手車
手車與柜體絕緣配合,機械聯鎖安全。根據用途不同,手車分斷路器手車、電壓互感器手車、計量手車、隔離手車等。各類手車按模數,積木式變化,同規格手車可以互相自由互換。當手車需要移開柜體時,用一輛專用轉運車,就可以方便抽出;由于采用中置式,整個小車體積小,檢查、維護方便。

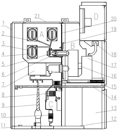
開關柜結構圖
A.母線室 B.斷路器手車室 C.電纜室 D.繼電器儀表室
1.外殼 2.分支母線 3.母線套管 4.主母線 5.靜觸頭 6.靜觸頭盒
7.電流互感器 8.接地開關 9.一次電纜 10.避雷器 11.接地主母線
12.底板 13.二次線槽 14.接地開關操作機構 15.可抽出式水平隔板
16.加熱裝置 17.斷路器手車 18.二次插頭 19.活門機構 20.裝卸式隔板 21.泄壓
3. 隔室
開關設備主要電氣元件都有其獨立的隔室,即:斷路器手車室、母線室、電纜室、繼電器儀表室。各隔室間防護等級都達到IP2X; 除繼電器室外,其它三隔室都分別有其泄壓通道。

a.斷路器隔室
抽出式斷路器移開后,斷路器隔室內的靜觸頭被活門遮蔽,斷路器隔室被保護。
在斷路器室內,打開金屬活門檢查靜觸頭。

b.母線隔室
1.主母線2.分支母線3.螺栓4.墊塊母線與支母線的聯接型式

c.電纜隔室
電纜室空間較大,必要時每相可并接6根單芯電纜。

d.繼電器儀表室
繼電器儀表室可安裝繼電保護元件、儀表、帶電監察指示器,以及特殊要求的二次設備。
4.防止誤操作聯鎖裝置
開關設備內裝有安全可靠的聯鎖裝置,完全滿足"五防"的要求。
5.泄壓裝置
在斷路器手車室,母線室和電纜室的上方均設有泄壓裝置,當斷路器或母線發生內部故障電弧時,頂部裝備的泄壓金屬板將會自動打開,釋放壓力和排泄氣體,以確保操作人員和開關柜的安全。

圖3
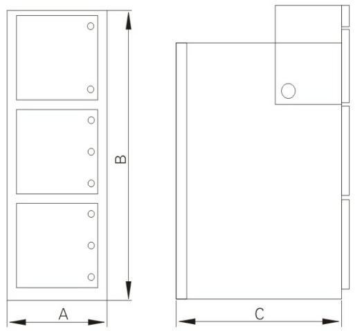
6.開關設備外形尺寸(見圖3、表5)
| 外形尺寸 | 12KV | 24KV | |
| 高H(mm) | 2300 | 2430 | |
| 寬W(mm) | ≤1250A | 800、650 | 1000 |
| 1600A | 800 or 1000 | 1000 | |
| >1600A | 1000 | 1000 | |
| 深度D(mm) | 電纜進線 | 1500 | 1850 |
| 架空進線 | 1660 | 2150 |
六.開關設備安裝和調試
1.開關設備地基見表6、圖4
2.開關設備的安裝
a.開關設備的安裝基礎尺寸與安裝尺寸(見圖5、表7)
| 電壓 | 柜寬A | 柜深C | M | L |
| 12KV | 650 | 1500 | 480 | 1450 |
| 1660 | 480 | 1610 | ||
| 800 | 1500 | 630 | 1450 | |
| 1660 | 630 | 1610 | ||
| 1000 | 1500 | 830 | 1450 | |
| 1660 | 830 | 1610 | ||
| 24KV | 1000 | 1850 | 830 | 1800 |
| 2150 | 830 | 2100 |



8.訂貨須知
KYN28A-12(24)開關柜訂貨時應提供下列技術資料
1.主接線方案圖編號、用途和單線系統圖、額定電壓、額定電流,額定短路開斷電流、配電室平面布置圖及開關柜的排列配置圖等;
2.開關柜控制、測量及保護功能的要求以及其它閉鎖和自動裝置的要求及原理圖;
3.開關柜內主要電氣元件的型號,規格及數量;
4.如開關柜之間或進線柜需要母線橋連接,應提供母線橋的額定載流量,母線橋的跨度,距地高度等具體要求數;
5.開關柜使用在特殊環境條件時,應在訂貨時詳細說明;
6.其它特殊要求,在訂貨前須詳細書面說明、協商。如訂貨合同中有所用變柜,地基制作請按照提供的基礎圖施工。
合肥kyn28a-12,中置式中壓開關柜生產廠家,安徽得潤電氣,專業生產高低壓開關柜、電容補償柜等電氣成套設備廠家。











