乳尖春药h糙汉共妻,99热这里有精品,在线亚洲人成电影网站色www,欧美mv日韩mv国产网站

電氣廠家提供的10kv中置柜產品說明

發布日期:2018-10-09
掃一掃
來源:
瀏覽次數:176

KYN28A戶內交流金屬鎧裝中置式開關設備

一.概述

KYN28A型戶內交流金屬鎧裝中置式開關設備(以下簡稱開關設備)系由西安森源公司開發和提供技術轉讓的先進中壓開關設備。它適用于三相交流額定電壓12KV、24KV、額定頻率50(60)Hz電力系統,用于接受和分配電能并對電路實行控制、保護及監測。

符合標準

 GB3906-2006 3~35kV交流金屬封閉開關設備》

 GB11022-199《高壓開關設備通用技術條件》

 IEC62271-200(2003)《額定電壓1 kV以上52kV及以下交流金屬封閉開關設備和控制設備》

 DL404-97《戶內交流高壓開關柜訂貨技術條件》


二.型號及其含義

KYN28.jpg


三.使用環境條件

1、環境溫度:最高溫度+40,最低溫度-10;

2、環境濕度日平均相對濕度95%,月平均相對濕度90%; 

3、海拔高度:1000m以下;      

4、抗地震度:地震烈度不超過8度;

5、周圍空氣應不含腐蝕性或可燃氣體、水蒸氣等明顯污染

6、無嚴重污穢及經常性的劇烈振動,嚴酷條件下嚴酷度設計滿足1類要求;

7、超過GB3906規定的正常的環境條件下使用時,由用戶和制造廠協商

注:相對濕度大于70%時應接通電加熱器。

 凡海拔高度超過1000m的地方,按JB/Z102-71規定處理


四.技術參數

1.開關設備技術參數見表

項目

單位12KV 參數24KV參數
額定電壓kV3.6,7.2,1224
額定頻率Hz50(60)50(60)
斷路器額定電流A

630,1250,1600,2000,

2500,3150,40005000

630,1250,16002000,2500

開關柜額定電流

A

630,1250,1600,2000,

2500,31504000,5000

630,1250160020002500

額定熱穩定電流(4s)

kA

25,31.5,40,50(1S)

25,31.5,40

額定動穩定電流(峰值)

kA

63,80,100,125

6380,100

額定短路開斷電流

kA

25,31.54050

25,31.5,40

額定短路關合電流(峰值)

kA

6380,100,125

6380,100

額定絕

緣水平

1min工頻耐受電壓

kV24
32
4265

雷電沖擊耐受電壓

kV40607595

防護等級

外殼為IP4X,隔室間、斷路器室門打開時為IP2X

2VS1VD4、3AE真空斷路器技術參數

項目

單位12KV 參數24KV參數
額定電壓kV3.6,7.2,1224
額定頻率Hz50(60)50(60)
斷路器額定電流A

630,1250,1600,2000,

2500,3150,4000,5000

6301250,1600,2000,2500

開關柜額定電流

A

630,1250,1600,2000,

2500,31504000,5000

630,12501600,2000,2500

額定熱穩定電流(4s)

kA

25,31.540,50(1S)

25,31.5,40

額定動穩定電流(峰值)

kA

63,80,100125

63,80100

額定短路開斷電流

kA

25,31.5,40,50

25,31.540

額定短路關合電流(峰值)

kA

63,80,100125

63,80,100

額定絕

緣水平

1min工頻耐受電壓

kV4265

雷電沖擊耐受電壓

kV7595
額定操作順序
        O-0.3s(180s)-CO-180s-CO
額定短路開斷電流開斷次數5050
機械壽命


2000010000

當斷路器用于控制3~10kV電動機時,若起動電流小于600A,必須加金屬氧化鋅避雷器,其具體要求由用戶與制造廠聯系協商:當斷路器用于開斷電容器組時,電容器組的額定電流不應大于斷路器額定電流的80%。

3、操作機構技術參數見表

名稱
單位數值
額定操作電壓合閘線圈VDC220、110,AC220、110
分閘線圈VDC220、110,AC220、110
線圈功率
合閘線圈W245
分閘線圈W245
儲能電機功率W50
儲能電機額定電壓VDC220、110,AC220、110
儲能時間
S>10


五.結構特點

體是由柜體和中置式可抽出部件(即手車)兩大部分組成 (見圖1)。柜體分四個單獨的隔室,外殼防護等級為IP4X,各小室間和斷路器室門打開時防護等級為IP2X。本開關設備可以從正面進行安裝、調試和維護,因此它可以背靠背、組成雙重排列和靠墻安裝.

1.外殼及其它

開關設備的主柜架是選用進口敷鋁鋅薄鋼板,并采用多重折邊工藝,使整個柜體具有很強的抗腐蝕與抗氧化作用的優點。 

2.手車

  手車與柜體絕緣配合,機械聯鎖安全。根據用途不同,手車分斷路器手車、電壓互感器手車、計量手車、隔離手車等。各類手車按模數,積木式變化,同規格手車可以互相自由互換。當手車需要移開柜體時,用一輛專用轉運車,就可以方便抽出;由于采用中置式,整個小車體積小,檢查、維護方便。

得潤電氣KYN28A-12高壓開關柜結構圖

開關柜結構圖

  

A.母線室    B.斷路器手車室   C.電纜室   D.繼電器儀表室

1.外殼  2.分支母線  3.母線套管  4.主母線  5.靜觸頭  6.靜觸頭盒

7.電流互感器  8.接地開關  9.一次電纜  10.避雷器  11.接地主母線      

12.底板  13.二次線槽  14.接地開關操作機構  15.可抽出式水平隔板   

16.加熱裝置  17.斷路器手車  18.二次插頭  19.活門機構  20.裝卸式隔板  21.泄壓

3. 隔室

開關設備主要電氣元件都有其獨立的隔室,:斷路器手車室、母線室、電纜室、繼電器儀表室。各隔室間防護等級都達到IP2X; 除繼電器室外,其它三隔室都分別有其泄壓通道。

斷路器隔室.jpg

 a.斷路器隔室 

抽出式斷路器移開后,斷路器隔室內的靜觸頭被活門遮蔽,斷路器隔室被保護。

 在斷路器室內,打開金屬活門檢查靜觸頭。



母線隔室.jpg


b.母線隔室

1.主母線2.分支母線3.螺栓4.墊塊母線與支母線的聯接型式



電纜隔室.jpg


c.電纜隔室 

電纜室空間較大,必要時每相可并接6根單芯電纜。






繼電器儀表室.jpg


d.繼電器儀表室

繼電器儀表室可安裝繼電保護元件、儀表、帶電監察指示器,以及特殊要求的二次設備。




4.防止誤操作聯鎖裝置

開關設備內裝有安全可靠的聯鎖裝置,完全滿足"五防"的要求。

5.泄壓裝置

在斷路器手車室,母線室和電纜室的上方均有泄壓裝置,當斷路器或母線發生內部故障電弧時,頂部裝備的泄壓金屬板將會自動打開,釋放壓力和排泄氣體,以確保操作人員和開關柜的安全。

圖3.jpg

            圖3

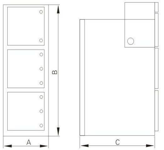
6.開關設備外形尺寸(見圖3、表5)

外形尺寸
12KV24KV
高H(mm)
23002430
寬W(mm)

≤1250A

800、6501000
1600A800 or 10001000
>1600A10001000
深度D(mm)電纜進線15001850
架空進線16602150

六.開關設備安裝和調試

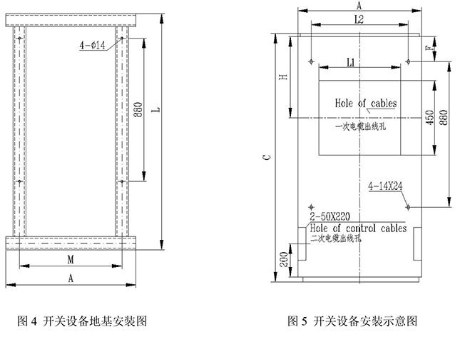
 1.開關設備地基見表6、圖4

  2.開關設備的安裝

  a.開關設備的安裝基礎尺寸與安裝尺寸(見圖5、表7)

電壓
柜寬A柜深CML
12KV
65015004801450
16604801610
80015006301450
16606301610
100015008301450
16608301610
24KV
1000
18508301800
21508302100

圖4圖5.jpg 

得潤電氣 KYN28A-12高壓開關柜 咨詢熱線:4000551777

得潤電氣 KYN28A-12高壓開關柜 咨詢熱線:4000551777 


8.訂貨須知 

KYN28A-12(24)開關柜訂貨時應提供下列技術資料

1.主接線方案圖編號、用途和單線系統圖、額定電壓、額定電流,額定短路開斷電流、配電室平面布置圖及開關柜的排列配置圖等;

2.開關柜控制、測量及保護功能的要求以及其它閉鎖和自動裝置的要求及原理圖;

3.開關柜內主要電氣元件的型號,規格及數量;

4.如開關柜之間或進線柜需要母線橋連接,應提供母線橋的額定載流量,母線橋的跨度,距地高度等具體要求數;

5.開關柜使用在特殊環境條件時,應在訂貨時詳細說明;

6.其它特殊要求,在訂貨前須詳細書面說明、協商。如訂貨合同中有所用變柜,地基制作請按照提供的基礎圖施工。

得潤電氣KYN28A-12中置式開關柜圖片



專業鑄就品質 科技成就未來
返回頂部
在線客服系統